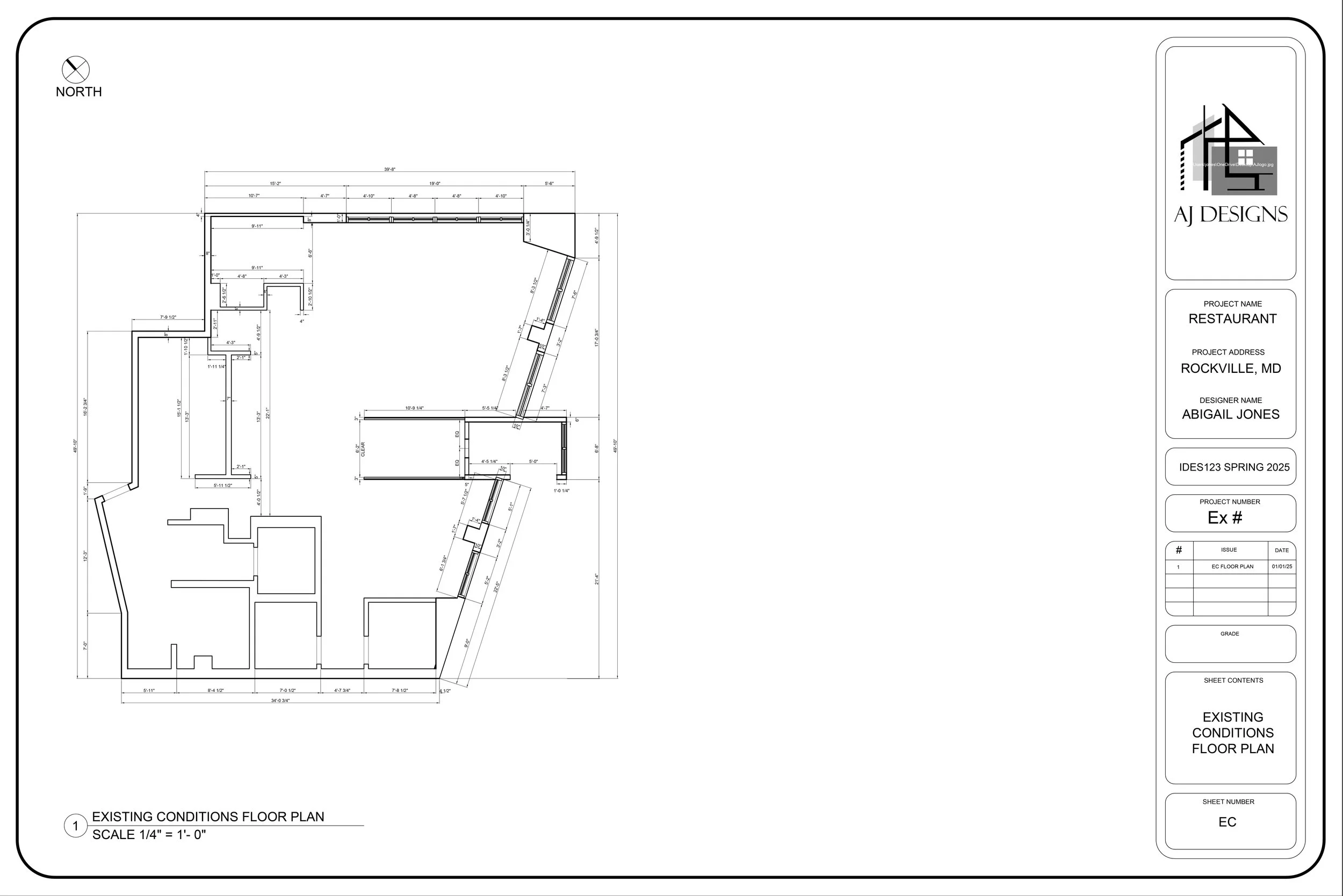
AutoCAD AutoCAD architectural drawings created for a modern restaurant project. showcasing the step-by-step process from existing conditions to designer furniture details. Slide 1 Slide 1 (current slide) Slide 2 Slide 2 (current slide) Slide 3 Slide 3 (current slide) Slide 4 Slide 4 (current slide) Slide 5 Slide 5 (current slide) Slide 6 Slide 6 (current slide) Slide 7 Slide 7 (current slide) Slide 8 Slide 8 (current slide) Slide 9 Slide 9 (current slide) Slide 10 Slide 10 (current slide)